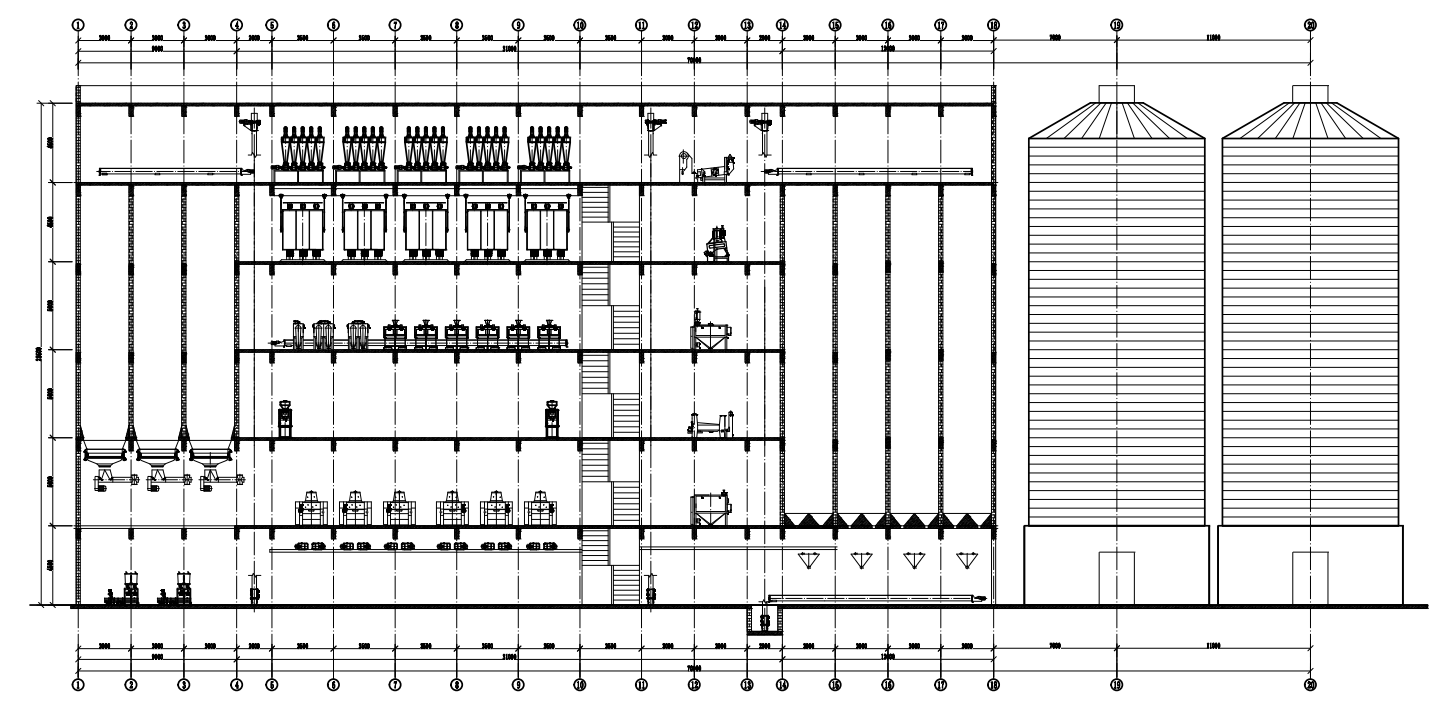
麵粉加工廠投資多少錢?300噸(dun)麵(mian)粉(fen)廠(chang)投(tou)資(zi)多(duo)少(shao)錢(qian)?麵(mian)粉(fen)加(jia)工(gong)廠(chang)的(de)投(tou)資(zi)主(zhu)要(yao)是(shi)在(zai)設(she)備(bei),廠(chang)房(fang),人(ren)工(gong)和(he)水(shui)電(dian)四(si)大(da)塊(kuai),四(si)者(zhe)息(xi)息(xi)相(xiang)關(guan),不(bu)同(tong)產(chan)能(neng)的(de)麵(mian)粉(fen)加(jia)工(gong)設(she)備(bei)價(jia)格(ge)天(tian)差(cha)地(di)別(bie),不(bu)能(neng)一(yi)言(yan)而(er)論(lun);麵粉廠根據產能可分為大型麵粉廠、中型麵粉廠和小型麵粉廠。300噸/天的麵粉加工廠是屬於大型現代麵粉加工廠。
300噸麵粉加工廠車間主要由 製粉車間 配粉車間 清理車間 原料庫房 麩皮庫房 成品庫房等車間組成

1、篩選設備
振動分級篩用於糧食加工企業的預清、預清,能有效篩除糧食、粉料庫中的細小雜質。平麵回轉篩用於碾米、製粉、製油、飼料、食品、化工等行業對原料進行清理或分級,可根據不同的物料選用不同的篩板,以達到理想的分級效果。
2.比重去石機
單層或雙層去石器能有效地將石塊、石塊、土粒、玻璃等從穀物中分離出來。
3、磁選設備
磁選機和永磁筒可以吸出混在大塊中的磁性碎屑,使其與物料分離。
4.麵粉機
複式氣壓磨粉機,複式磨粉機。
5、篩選設備
平麵篩網和方篩網可以根據需要將材料分為不同特性的品種。
6、配粉設備
7、其他輔助設備
添加元素設備,自動打包設備等

大型麵粉生產加工廠投資金額主要是受產能、工藝、材質3大因素影響,300噸的麵粉加工廠設備和場地資金 大約需要1500萬左右;

河南中瑞糧油機械有限公司版權所有